首頁 > 廚具案例 > 桃園呂小姐
呂小姐想要換新廚具的要求是
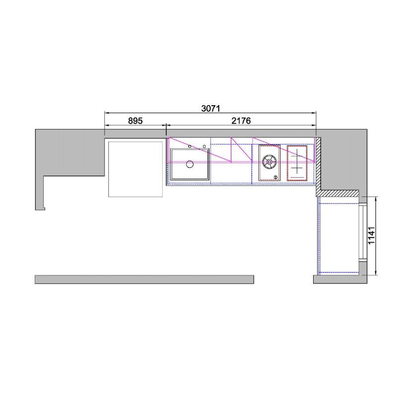
1.檯面高度想增加至90公分。
2.要加裝洗碗機。
3.讓收納與美感更提升。
感謝您的惠顧,希望您滿意愛森的規劃與服務。
祝您廚藝越來越棒,家庭幸福美滿!
簡約雙色廚具
南投宋小姐
桃園呂小姐
埔里洪小姐