首頁 > 廚具案例 > 桃園呂小姐

桃園呂小姐

  • 桃園呂小姐
  • 桃園呂小姐
  • 桃園呂小姐
  • 桃園呂小姐
  • 桃園呂小姐
商品圖像
  • 商品資訊

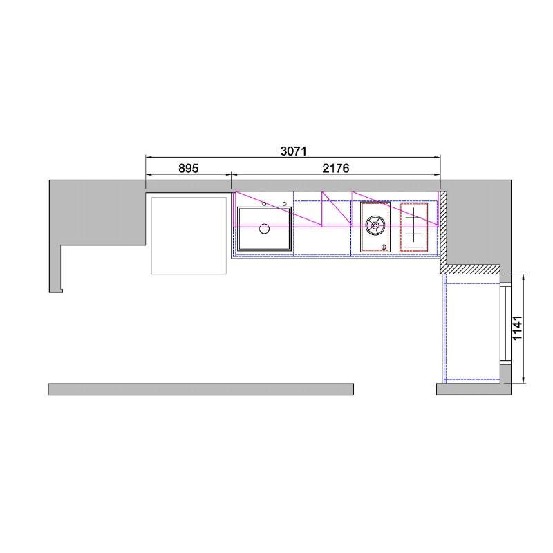
    呂小姐想要換新廚具的要求是

     

    1.檯面高度想增加至90公分。

    2.要加裝洗碗機。

    3.讓收納與美感更提升。

     

    感謝您的惠顧,希望您滿意愛森的規劃與服務。

    祝您廚藝越來越棒,家庭幸福美滿!

     

     
  • 商品Q&A

    • 提問者稱呼
    • 手機
    • 留言內容
    • 驗證碼
TOP